or

By signing in, I accept the Rebuildetroit.com Terms of Use.

Agent Registration

Find Your Agent Profile

Agent Registration

$129,900

355 LEICESTER

Detroit, Michigan 48202

North End Neighborhood

Price per sqft: N/A

Highlights

About This Home

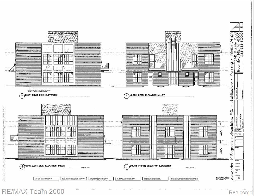
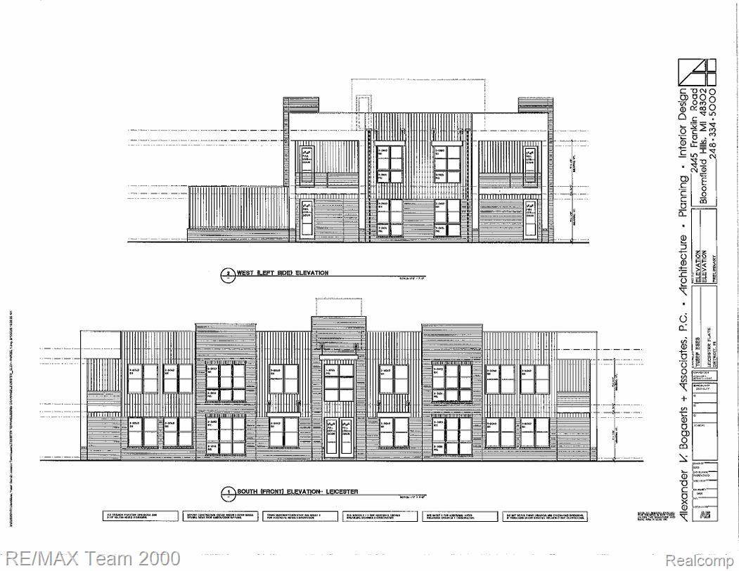
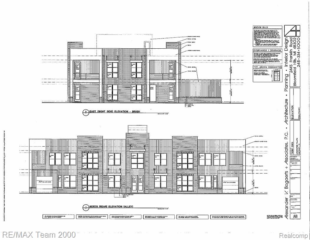
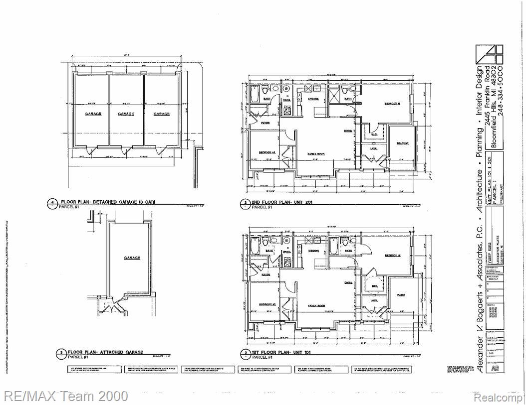
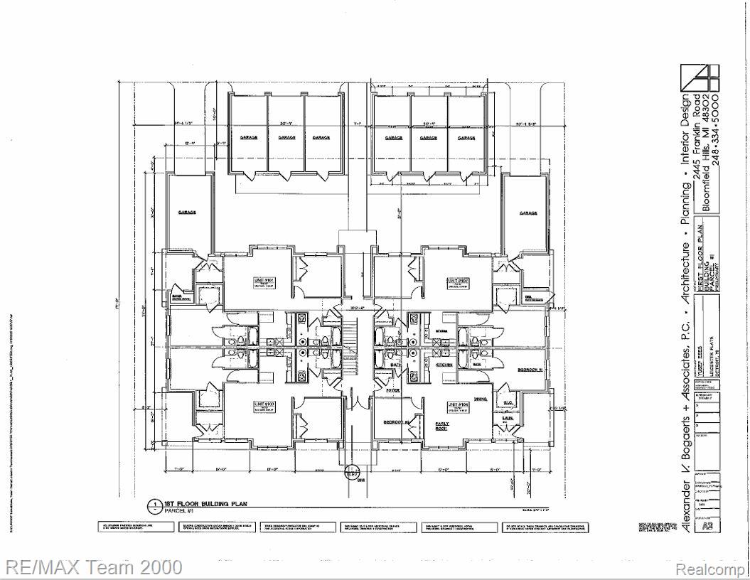
Nice size lots in the vibrant Northend. 114 ft of frontage. Endless opportunities to construct residential single-family homes to townhomes. Prime location. Not far from downtown Detroit. Local amenities close by. Corner lot. Take a look at the possibilities with the architectural sketches provided in the pictures section.

Listing Agent

Allen A Gawall

RE/MAX Team 2000

Listed on : March 25, 2025

Activity

Days on Market:

410

Home Details

Home Type

  • Land

Est. Annual Taxes

  • $110

Year Built

  • N/A

Lot Details

  • 0.31 Acre Lot
  • Lot Dimensions are 114.00 x 117.00

Parking

Home Design

Interior Spaces

Kitchen

Flooring

Bedrooms and Bathrooms

Laundry

Finished Basement

Home Security

Pool

Outdoor Features

Location

  • 355 LEICESTER

Utilities

  • Water Source: Public, WateratStreet
  • Sewer: PublicSewer, SewerAtStreet

About the Showing Agent

Hassan Scheib

Own It Realty

313-395-0000

mail IconContact Hassan

As a leading Real Estate investment broker, native Detroiter, and family man, Hassan Scheib commands a firm grasp of investing in the Detroit Metro area. His experience and native intuition have led him from success to success as he has overseen property sales, acquisitions, inspections, construction, and tenant placement. Hassan combines keen business acumen, finance know-how, transparency, and ethics with every deal, and he is skilled in Portfolio Sales, Investor Relations, Strategic Planning, Marketing & Management. Above all else, he understands that the client is at the center of the deal and knows how to listen to their needs, roll up his sleeves, and offer them first-class customized service. Committed and attentive, Hassan is always ready to dip into his expansive professional network, industry experience, care, and meticulous attention to detail to help clients reach their goals.

Map

About North End

North End Learn More About North End
Own It Realty

Hi Hassan, I would like to know more about this listing.

Connect with a buyer agent today to discuss this property.

Send a Message

Hassan Scheib

By sending your message, you agree that this business or rebuilddetroit.com may call or text you by live or automated means about your inquiry at the number you provided. You don't need to consent as a condition of buying any property, goods, or services. Message/data rates may apply. You also agree to our Terms of Use.

Message Has Been Sent Successfully!